BIM *building information modeling
Production et accompagnement BIM
Maquettes RVT/IFC (plans, coupes, élévations, nomenclatures); familles paramétriques ; Coordination et suivi.
Nous accompagnons les agences d’architecture et petites structures dans la production BIM, en réalisant des maquettes et livrables adaptés à chaque projet. Notre intervention peut aller d’une production complète à un renfort ponctuel, avec une intégration au sein de vos équipes pour structurer les méthodes, assurer le transfert de compétences et garantir la continuité des projets. Nous développons également des familles paramétriques, conçues selon vos contraintes de matériaux, dimensions et paramètres spécifiques, afin d’enrichir vos bibliothèques et d’optimiser la précision et l’efficacité de vos maquettes.
































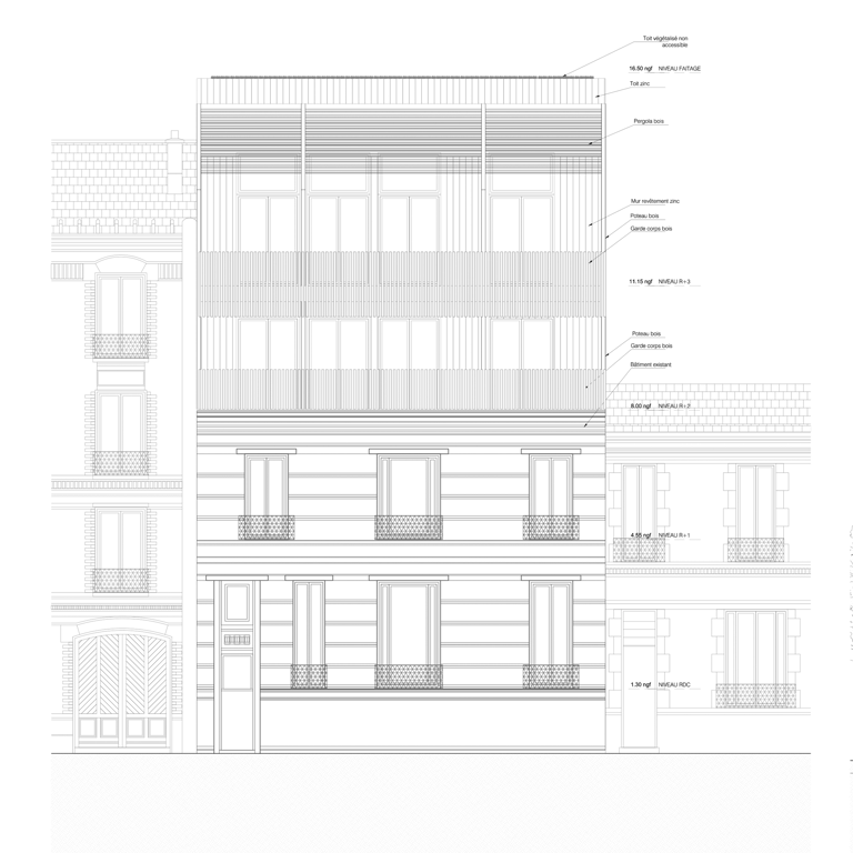
Logements & Groupe Scolaire, Bordeaux FR
Modélisation des données du bâtiment (APS/APD)
@Olivier Palatre Architecte
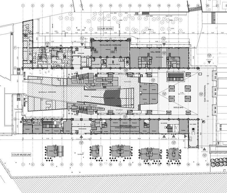
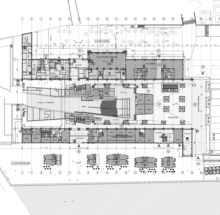
Gare d'Austerlitz, Paris FR
Relevé Existant - Modélisation des données du bâtiment (APS/APD)
@AREP (En équipe chez AREP)
Ecole élémentaire 8 Classes, Noisy-le-Grand FR
Modélisation des données du bâtiment (APD)
@Agende d'architecture Elévation
Cinéma 9 Salles, Béthune FR
Modélisation des données du bâtiment (APS/APD)
@Olivier Palatre Architecte
Modernisation Gare d'Austerlitz, Paris FR
Assistant d'étude / Modélisation des données du bâtiment (APS/APD)
@AREP (En équipe chez AREP)
Gare de Lyon, Paris FR
Modélisation des données du bâtiment - Maquette Existant
@AREP
Modernisation Gare du Nord, Paris FR
Assistant d'étude / Modélisation des données du bâtiment (APS/APD)
@AREP (En équipe chez AREP)
Campus Nautique - Friche du Gabut, La Rochelle FR
Modélisation des données du bâtiment (Concours public)
@LTA Studio
Extension Logement, Pantin FR
Modélisation (Capacité / APS)
@LTA Studio











